
W22 – Neubau und Aufstockung eines Geschäftshauses
Auftraggeber: WestfalenWind GmbH, Paderborn | Baustart: 2022 | Auftragsart: Ersatzneubau und Aufstockung, Direktauftrag | Umfang: Entwurf, Bauantrag, Ausführungsplanung, Ausschreibung, Bauleitung | Visualisierungen: Loom Visualisierung| Fotografie: Patrick Sonntag Fotografie

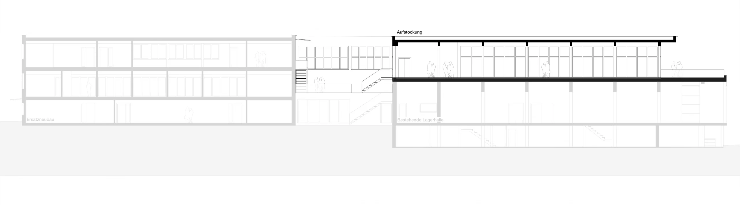
Die Expansion der Firma WestfalenWind aus Paderborn, die sich auf die Belieferung und die Produktion von Strom aus Windkraft- und Photovoltaik-Anlagen spezialisiert hat, führte in den vergangenen Jahren zu einem gesteigerten Platzbedarf für ihre Mitarbeiter. Um zusätzliche Flächenversiegelung auf dem bereits genutzten Grundstück zu vermeiden, entschied sich das Unternehmen, eine neue Aufstockung auf einer bestehenden Lagerhalle zu errichten, die aus einer Stützen-Binder Stahlbetonkonstruktion besteht. Nachhaltigkeit und eine innovative Bauweise standen im Fokus dieses Bauprojekts. Die statischen Anforderungen erforderten einen Leichtbau auf der vorhandenen Lagerhalle, wobei das Raster der darunter liegenden Hallenkonstruktion in der Aufstockung berücksichtigt werden musste. Eine besonders leichte und ressourcenschonende Holzkonstruktion wurde verwendet, was sich auch in der Holzfassade von außen ablesen lässt. Die Verwendung ökologischer Baumaterialien wie Holzweichfaserdämmung in der Flachdachdämmung und der Holzrahmenbauwand sowie eine intelligente Gebäudeautomation mit modernster Steuerungs- und Regelungstechnik setzen neue Maßstäbe im Bereich der Nachhaltigkeit. Die Fassade und die Terrassen des Gebäudes bestehen aus heimischem Lärchenholz, das lokal beschaffen wurde und einen kurzen Lieferweg von weniger als 50 km vom Wald bis zur Baustelle aufweist. Die gelungene Kombination aus traditionellem Holzbau und moderner Vorproduktion verleiht dem Gebäude eine einladende Atmosphäre und unterstreicht das Engagement von WestfalenWind für Nachhaltigkeit und Umweltschutz.


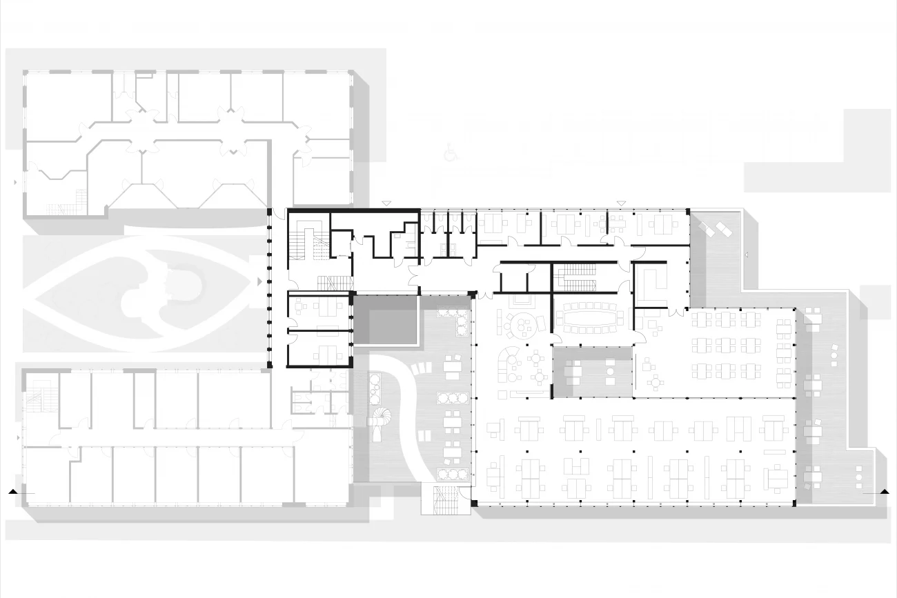
Durch hohe Decken (lichte Raumhöhe 4m) und Lichthöfe wird Tageslicht in den tiefen Grundriss geleitet. Der Bau bietet Platz für Einzelbüros, Besprechungsräume, eine Mensa, zwei Küchen, neue WC-Anlagen, eine große Dachterrasse und einen großzügigen Open-Space-Arbeitsbereich. In Bezug auf die Gebäudetechnik besticht das Bauwerk durch die Integration von Photovoltaik sowohl an der Fassade der Lagerhalle als auch auf dem gesamten Dach. Die schnelle Bauweise wurde durch die Verwendung eines Aufzugschachts mit drei Haltestellen aus Massivholz ermöglicht, der in einem Stück geliefert und montiert wurde. Die hohe Vorfertigung und die vielen Sichtelemente aus Holz trugen zur effizienten und zeitnahen Fertigstellung bei. Sogar die Büromöbel, Küchen und Schreibtische im Gebäude sind aus Massivholz gefertigt. Die Brettschichtholzdecke, die Stützen und die Holzfenster wurden lediglich mit hellen Pigmenten lasiert, um die natürliche Holzmaserung und Materialität im Innenraum sichtbar zu halten. Diese Gestaltung schafft eine inspirierende Arbeitsumgebung für die Mitarbeiter und unterstreicht den Einsatz nachhaltiger Materialien. Wir sind überzeugt, dass dieses Projekt ein wegweisendes Beispiel für effizientes und nachhaltiges Bauen in Holz-Skelett-Bauweise ist. Es verbindet Funktionalität mit hohem architektonischem Anspruch in einer ansprechenden Arbeitsumgebung. Gerne stehen wir Ihnen zur Verfügung, um Ihnen weitere Informationen bereitzustellen.